



CHÍNH CHỦ CẦN NHƯỢNG LẠI CĂN 2PN TẦNG TRUNG (6-9 -RUBY PARK PHÚC LỢI
Phúc Lợi, Phường Việt Hưng, Quận Long Biên, TP Hà Nội, Quận Long Biên, TP Hà Nội
Mô Tả Chi Tiết
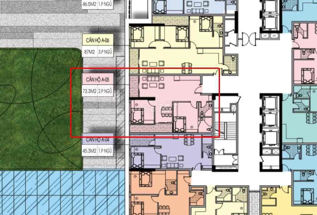
Gia đình mình cần bán lại căn hộ thông tin như sau: * Diện tích: 73,3m2 * Tầng trung từ 6-9 ( không bị đợi thang lâu ) * Căn hộ 2pn 2 logia, có thể thiết kế thành 2n+1 như ảnh * 4 hầm gửi xe, free đỗ xe ô tô xe máy, phí dịch vụ 1 năm * Pháp lý: HDMB đầy đủ * Thời gian bàn giao: cuối năm 2026 * Nội thất: Bàn giao cao cấp từ cđt ( kính full viền, sàn gỗ, vv… ) * Giá bán có gia lộc cho KH thiện chí, và tặng thêm 1 gói thiết kế nội thất ( mình làm KTS TK luôn ) * A/C nào có thiện chí Nhắn mình để biết thêm thông tin chi tiết Nguon: chotot_api | Dang ngay: 31/03/2026 | URL goc: https://www.chotot.com/mua-ban-bat-dong-san/131022959.htm
Tiện Ích Nội Khu
Vị Trí Trên Bản Đồ
Chưa có tọa độ bản đồ
Phúc Lợi, Phường Việt Hưng, Quận Long Biên, TP Hà Nội, TP Hà Nội
TitanHome
Chuyên viên tư vấn cao cấp
Bất Động Sản Tương Tự

Chính chủ cắt lỗ 300tr, ngay trung tâm Thanh Trì
location_onHuyện Thanh Trì, TP Hà Nội

XÃ ĐÀN 40m , 19.5tỷ , OTO TRÁNH , KINH DOANH , VỈA HÈ , 6 TẦNG
location_onQuận Đống Đa, TP Hà Nội

ĐỐNG ĐA 45m x 5 tầng x mt 5m - HƠN 20đ NGÕ Ô TÔ - LÔ GÓC - KINH DOANH
location_onQuận Đống Đa, TP Hà Nội