



Phố Dương Văn Bé, Phường Vĩnh Hưng, Quận Hoàng Mai, TP Hà Nội, Quận Hoàng Mai, Hà Nội
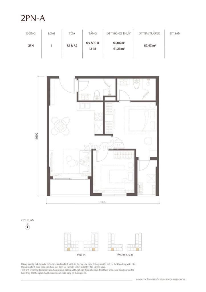
Chính chủ bán căn hô hạng sang 2 phòng ngủ tại dư án Rivea Residences, Vĩnh Hưng, Hoàng Mai sẵn slot đỗ oto lh *** - vị trí kim cương : cạnh Times city, chỉ 3p tới đường Minh Khai, 5p tới phố cổ, cầu Vĩnh Tuy, tiện đường di chuyển Tân Mai, Minh Khai, Vĩnh Hưng, Nguyễn Khoái, Lĩnh Nam, phố Bạch Mai, Kim Ngưu - 35 tầng nổi, 4 tầng hầm, 6 tầng tiện ích, 4 tầng thương mại - mỗi căn hộ 1 slot oto - sở hữu lâu dài - diên tích căn hộ : 62m sử dụng, 2 ngủ 2 vệ sinh, 1 khách bếp truc 12A view công viên, hồ điều hoà, hướng Nam mát mẻ mùa hè, ấm áp mùa đông. - bàn giao : full nôi thất liền tường cao cấp - tt sớm 95% : 6,981 tỷ - tt sớm 50% : 7,29 tỷ - tt sớm 50% + HTLS : 7,599 tỷ - tt tiến độ chuẩn : 8,186 tỷ - vay 0% HTLS ; 8,53 tỷ, vốn tự có 2 tỷ - tiện ích hiên đai : rap chiếu phim, bể bơi 4 mùa, bể sục, sauna, golf, bar garden, vườn thương uyển, cigar, gym, khu vui chơi trẻ em, thư viện, phòng làm việc... Liên hê Ms Ánh hỗ trợ xem nhà, thủ tuc mua nhà : ***
Nguon: chotot_api | Dang ngay: 31/03/2026 | URL goc: https://www.chotot.com/mua-ban-bat-dong-san/131520799.htm
Chưa có tọa độ bản đồ
Phố Dương Văn Bé, Phường Vĩnh Hưng, Quận Hoàng Mai, TP Hà Nội, Hà Nội