



Đường Linh Đông, Phường Hiệp Bình, Thành phố Thủ Đức, TP Hồ Chí Minh, Thành phố Thủ Đức, Hồ Chí Minh
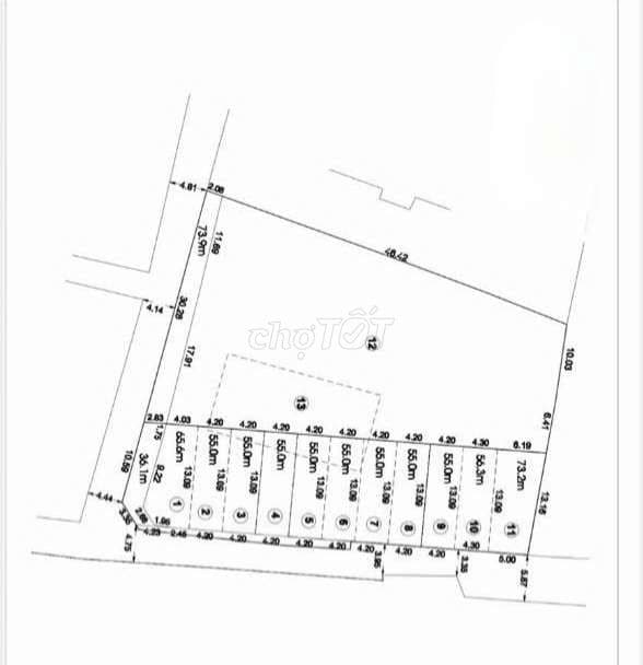
💰 Giá chỉ từ 5.2 tỷ/lô – Sổ riêng từng nền ------------- 📍 Vị trí cực đẹp: Hẻm xe hơi Đường 26, gần mặt tiền Linh Đông & Phạm Văn Đồng, cách chợ Tam Hà chỉ vài phút 📐 Diện tích đồng đều: Lô 4,5: 55m² (4.2 x 13.2m) – 5.4 tỷ Lô 7,8,9,10: 55m² (4.2 x 13.2m) – 5.2 tỷ 🏡 Ưu điểm nổi bật: ✔️ Khu phân lô đồng bộ, xây cao tầng: 4 tầng + tum ✔️ Hẻm xe hơi, khu dân cư hiện hữu ✔️ Gần chợ, trường học, tiện ích đầy đủ ✔️ Di chuyển nhanh ra Phạm Văn Đồng – đi sân bay & trung tâm cực tiện 💯💯 Sổ riêng từng lô - Công chứng nhanh gọn 📞 Liên hệ ngay để chọn vị trí đẹp – giá tốt khu Linh Đông!
Nguon: chotot_api | Dang ngay: 22/04/2026 | URL goc: https://www.chotot.com/mua-ban-bat-dong-san/131957460.htm
Chưa có tọa độ bản đồ
Đường Linh Đông, Phường Hiệp Bình, Thành phố Thủ Đức, TP Hồ Chí Minh, Hồ Chí Minh