



Đường Hà Đặc, Phường Trung Mỹ Tây, Quận 12, TP Hồ Chí Minh, Quận 12, TP Hồ Chí Minh
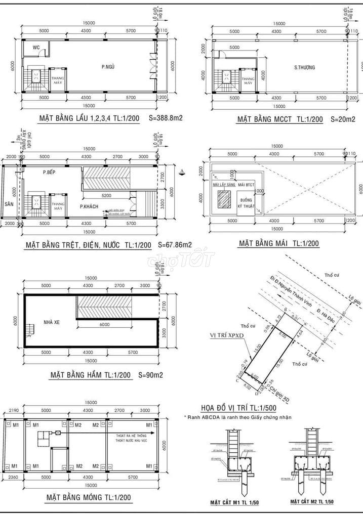
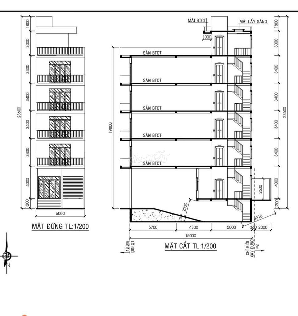
bán gấp nhà c4 nát mặt tiền hà đặc trung mỹ tây quận 12 diện tích 6x22 thổ cư 133m2 quy hoạch xây dựng hầm trệt 5 lầu sân thượng vị trí đẹp trục kinh doanh buôn bán tiện xây khách sạn, văn phòng công cty, căn hộ dịch vụ cho thuê dòng tiền cao cao
Nguon: chotot_api | Dang ngay: 03/04/2026 | URL goc: https://www.chotot.com/mua-ban-bat-dong-san/131601623.htm
Chưa có tọa độ bản đồ
Đường Hà Đặc, Phường Trung Mỹ Tây, Quận 12, TP Hồ Chí Minh, TP Hồ Chí Minh